虹吸式屋面雨水排放系统是按照虹吸满管压力流原理设计,利用“伯诺里”方程,进行周密的计算,系统采用特殊设计的雨水斗,使雨水在较浅的天沟水深下,即可在管道中形成满管流状态,同时利用建筑物屋面与地面的高差所产生的势能,在管道中形成局部真空,从而使雨水斗及水平管内获得附加的水流压力,产生虹吸现象。利用虹吸作用,极大地加快水在排水管道内的流速,快速排清屋面雨水。该系统由虹吸式雨水斗,管材(雨水斗支管,水平管吊管,立管及出户管),管配件,固定系统等组成。
固定管卡及滑动管卡装置

有别于传统的固定点配合伸缩节的固定方法,该固定系统利用固定管卡和滑动管卡将管道固定在与之平行的方型钢导轨上,不设伸缩节。

固定管卡限制了管道热胀冷缩产生的伸缩,并将轴向推力传递到导轨上。
滑动管卡的使用则使得管道可以在管卡上自由滑动,用以调节各管段之间因为温差产生的不均衡胀缩。

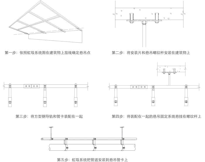
悬吊管安装步骤
第一步:依照虹吸系统图在建筑物上放线确定悬吊点
第二步:将安装片和悬吊螺纹杆安装在建筑物上
第三步:将方型钢导轨和管卡装配在一起
第四步:将装配在一起的悬吊固定系统悬挂在螺纹杆上
第五步:虹吸系统把管道安装到悬吊管卡上
